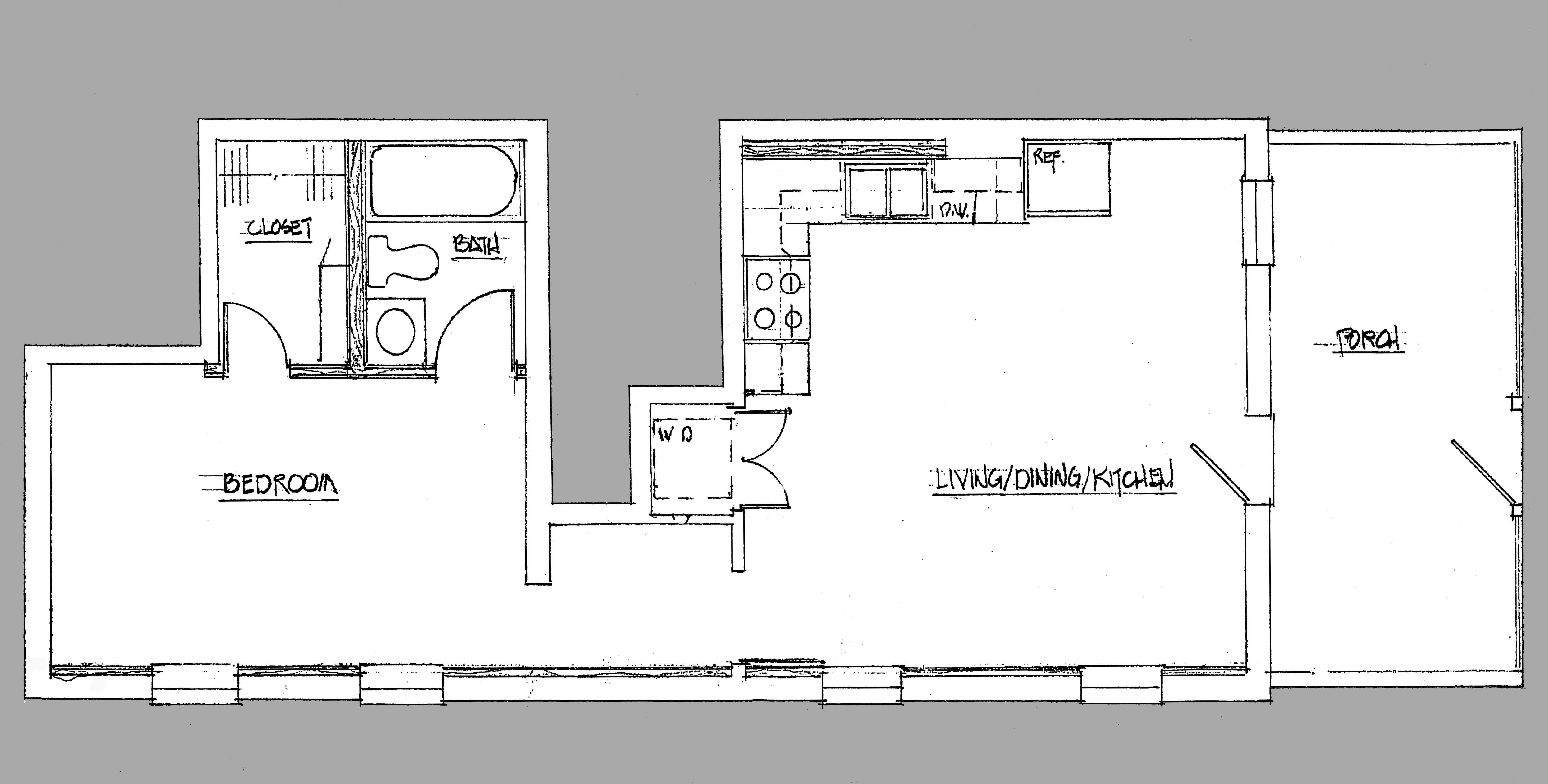
Details Renovated apartment building featuring 2 efficiencies and 1 large one bedroom unit just a few steps from Schiller Park in German Village Pet Policy pets are not allowed 888 City Park Ave., Efficiency Beds: Studio/efficiency | Baths: 1 | Rent: 995.00 per month | Available now Description German Village - 888 City Park - Great location on the corner of City Park and Whittier. This is a small, newly renovated efficiency with recessed lighting, ceiling fan, decorative ceiling, exposed brick, and decorative fireplace. Electric baseboard heat and a window air conditioner is provided. Although this apartment is small, it has lots of nice details and a full-sized bathroom with new ceramic tiled shower. Remember, we said this apartment is SMALL! Perfect for someone who may just be in town for a few days a week and wants their own place instead of ABNB or hotels. Please, no pets. 68 E. Whittier St., One Bedroom Beds: 1 | Baths: 1 | Rent: 1245.00 per month | Available on May 1st, 2026 Description Renovated 1 bedroom apartment in the heart of German Village. Features exposed brick, tall ceilings and original hardwood floor in the bedroom. Newer kitchen and bath with ceramic tile floors. Kitchen with stove, refrigerator, dishwasher and washer/dryer. High efficiency furnace and central air conditioning. Good storage and closet space. Enclosed back porch and shared backyard. Please no pets. Tenant responsible for gas, electric and water and sewer. kitchen & living room kitchen & living room bedroom bedroom bathroom bathroom stacked washer & dryer bedroom closet Floorplan Contact This listing was brought to you by CBS Partnership. Contact Phone (614) 444-2100 You must have JavaScript enabled to use this form. Name Daytime Phone # Evening Phone # Email Address Best time to reach you? Daytime Evening No preference Number of bedrooms requested Number of bedrooms requested - None -Studio/efficiency12345+Other… Enter other… Price Range Do you have any pets? Yes No Desired Move-In Comments QR This Place will not share, sell, or exchange your information with any unaffiliated company. We may however periodically send announcements and/or updates. You can request to be removed at any time. Map Property Address 888 City Park Columbus, OH 43206 United States Neighborhood German Village Our Other Listings 1083 City Park - 52 Thurman Ave. Beds: 0 Rent: $725.00 Renovated efficiencies/studios just a few steps from Schiller Park in German Village. Select units even have the original Murphy Beds- a great space saver! If no available apartments displayed below, contact us for future availability. 35-39 E. Russell St. 2 bedroom flats featuring hardwood floors, exposed brick, washer and dryer and one garage space. Use the link below for details on the specific apartment for lease. 27 E. Russell Street Rent: $2,500.00 Building DirectoryMain EntranceSuite 200 Lydian Counseling & Consultation, LLCSuite 201 Purple Star Photography 576 S. 9th Street Beds: 0 Rent: $995.00 Renovated efficiency apartments located in Schumacker Place/German Village/Merion Village area. 511 Mohawk St. Beds: 1 Rent: $1,245.00 Renovated apartment building in German Villabe featuring two large one bedroom units. 323 E. Livingston Ave. - 2 Bedroom, 2 Bath Beds: 2 Baths: 2 Rent: $2395.00 Available on May 1st, 2026 Completely renovated 2 bedroom 2 bathroom home. Designed for the couple or single looking for a master suite but wanting an additional bedroom for guests or a private office. The second floor features a large bedroom, bathroom with custom ceramic tile shower, plenty of closet space, and sitting area. The first floor has an open floor plan with kitchen, bath and 2nd bedroom/office. Kitchen has all new cabinets, counter tops, and appliances. Large, full, usable basement with high ceilings includes washer/dryer.
1083 City Park - 52 Thurman Ave. Beds: 0 Rent: $725.00 Renovated efficiencies/studios just a few steps from Schiller Park in German Village. Select units even have the original Murphy Beds- a great space saver! If no available apartments displayed below, contact us for future availability. 35-39 E. Russell St. 2 bedroom flats featuring hardwood floors, exposed brick, washer and dryer and one garage space. Use the link below for details on the specific apartment for lease. 27 E. Russell Street Rent: $2,500.00 Building DirectoryMain EntranceSuite 200 Lydian Counseling & Consultation, LLCSuite 201 Purple Star Photography 576 S. 9th Street Beds: 0 Rent: $995.00 Renovated efficiency apartments located in Schumacker Place/German Village/Merion Village area. 511 Mohawk St. Beds: 1 Rent: $1,245.00 Renovated apartment building in German Villabe featuring two large one bedroom units. 323 E. Livingston Ave. - 2 Bedroom, 2 Bath Beds: 2 Baths: 2 Rent: $2395.00 Available on May 1st, 2026 Completely renovated 2 bedroom 2 bathroom home. Designed for the couple or single looking for a master suite but wanting an additional bedroom for guests or a private office. The second floor features a large bedroom, bathroom with custom ceramic tile shower, plenty of closet space, and sitting area. The first floor has an open floor plan with kitchen, bath and 2nd bedroom/office. Kitchen has all new cabinets, counter tops, and appliances. Large, full, usable basement with high ceilings includes washer/dryer.
35-39 E. Russell St. 2 bedroom flats featuring hardwood floors, exposed brick, washer and dryer and one garage space. Use the link below for details on the specific apartment for lease. 27 E. Russell Street Rent: $2,500.00 Building DirectoryMain EntranceSuite 200 Lydian Counseling & Consultation, LLCSuite 201 Purple Star Photography 576 S. 9th Street Beds: 0 Rent: $995.00 Renovated efficiency apartments located in Schumacker Place/German Village/Merion Village area. 511 Mohawk St. Beds: 1 Rent: $1,245.00 Renovated apartment building in German Villabe featuring two large one bedroom units. 323 E. Livingston Ave. - 2 Bedroom, 2 Bath Beds: 2 Baths: 2 Rent: $2395.00 Available on May 1st, 2026 Completely renovated 2 bedroom 2 bathroom home. Designed for the couple or single looking for a master suite but wanting an additional bedroom for guests or a private office. The second floor features a large bedroom, bathroom with custom ceramic tile shower, plenty of closet space, and sitting area. The first floor has an open floor plan with kitchen, bath and 2nd bedroom/office. Kitchen has all new cabinets, counter tops, and appliances. Large, full, usable basement with high ceilings includes washer/dryer.
27 E. Russell Street Rent: $2,500.00 Building DirectoryMain EntranceSuite 200 Lydian Counseling & Consultation, LLCSuite 201 Purple Star Photography 576 S. 9th Street Beds: 0 Rent: $995.00 Renovated efficiency apartments located in Schumacker Place/German Village/Merion Village area. 511 Mohawk St. Beds: 1 Rent: $1,245.00 Renovated apartment building in German Villabe featuring two large one bedroom units. 323 E. Livingston Ave. - 2 Bedroom, 2 Bath Beds: 2 Baths: 2 Rent: $2395.00 Available on May 1st, 2026 Completely renovated 2 bedroom 2 bathroom home. Designed for the couple or single looking for a master suite but wanting an additional bedroom for guests or a private office. The second floor features a large bedroom, bathroom with custom ceramic tile shower, plenty of closet space, and sitting area. The first floor has an open floor plan with kitchen, bath and 2nd bedroom/office. Kitchen has all new cabinets, counter tops, and appliances. Large, full, usable basement with high ceilings includes washer/dryer.
576 S. 9th Street Beds: 0 Rent: $995.00 Renovated efficiency apartments located in Schumacker Place/German Village/Merion Village area. 511 Mohawk St. Beds: 1 Rent: $1,245.00 Renovated apartment building in German Villabe featuring two large one bedroom units. 323 E. Livingston Ave. - 2 Bedroom, 2 Bath Beds: 2 Baths: 2 Rent: $2395.00 Available on May 1st, 2026 Completely renovated 2 bedroom 2 bathroom home. Designed for the couple or single looking for a master suite but wanting an additional bedroom for guests or a private office. The second floor features a large bedroom, bathroom with custom ceramic tile shower, plenty of closet space, and sitting area. The first floor has an open floor plan with kitchen, bath and 2nd bedroom/office. Kitchen has all new cabinets, counter tops, and appliances. Large, full, usable basement with high ceilings includes washer/dryer.
511 Mohawk St. Beds: 1 Rent: $1,245.00 Renovated apartment building in German Villabe featuring two large one bedroom units. 323 E. Livingston Ave. - 2 Bedroom, 2 Bath Beds: 2 Baths: 2 Rent: $2395.00 Available on May 1st, 2026 Completely renovated 2 bedroom 2 bathroom home. Designed for the couple or single looking for a master suite but wanting an additional bedroom for guests or a private office. The second floor features a large bedroom, bathroom with custom ceramic tile shower, plenty of closet space, and sitting area. The first floor has an open floor plan with kitchen, bath and 2nd bedroom/office. Kitchen has all new cabinets, counter tops, and appliances. Large, full, usable basement with high ceilings includes washer/dryer.
323 E. Livingston Ave. - 2 Bedroom, 2 Bath Beds: 2 Baths: 2 Rent: $2395.00 Available on May 1st, 2026 Completely renovated 2 bedroom 2 bathroom home. Designed for the couple or single looking for a master suite but wanting an additional bedroom for guests or a private office. The second floor features a large bedroom, bathroom with custom ceramic tile shower, plenty of closet space, and sitting area. The first floor has an open floor plan with kitchen, bath and 2nd bedroom/office. Kitchen has all new cabinets, counter tops, and appliances. Large, full, usable basement with high ceilings includes washer/dryer.